Project van Hogendorplaan

Begin dit jaar hebben wij aangekondigd het riool in de Van Hogendorplaan, Van Heemstrastraat, Keucheniusstraat, Van Maanenstraat en Limburg van Stirumstraat te vervangen. Het riool pakken we aan om problemen aan het riool in de toekomst te voorkomen. De werkzaamheden aan het riool wil de gemeente gaan combineren met het opnieuw inrichten van de openbare ruimte.

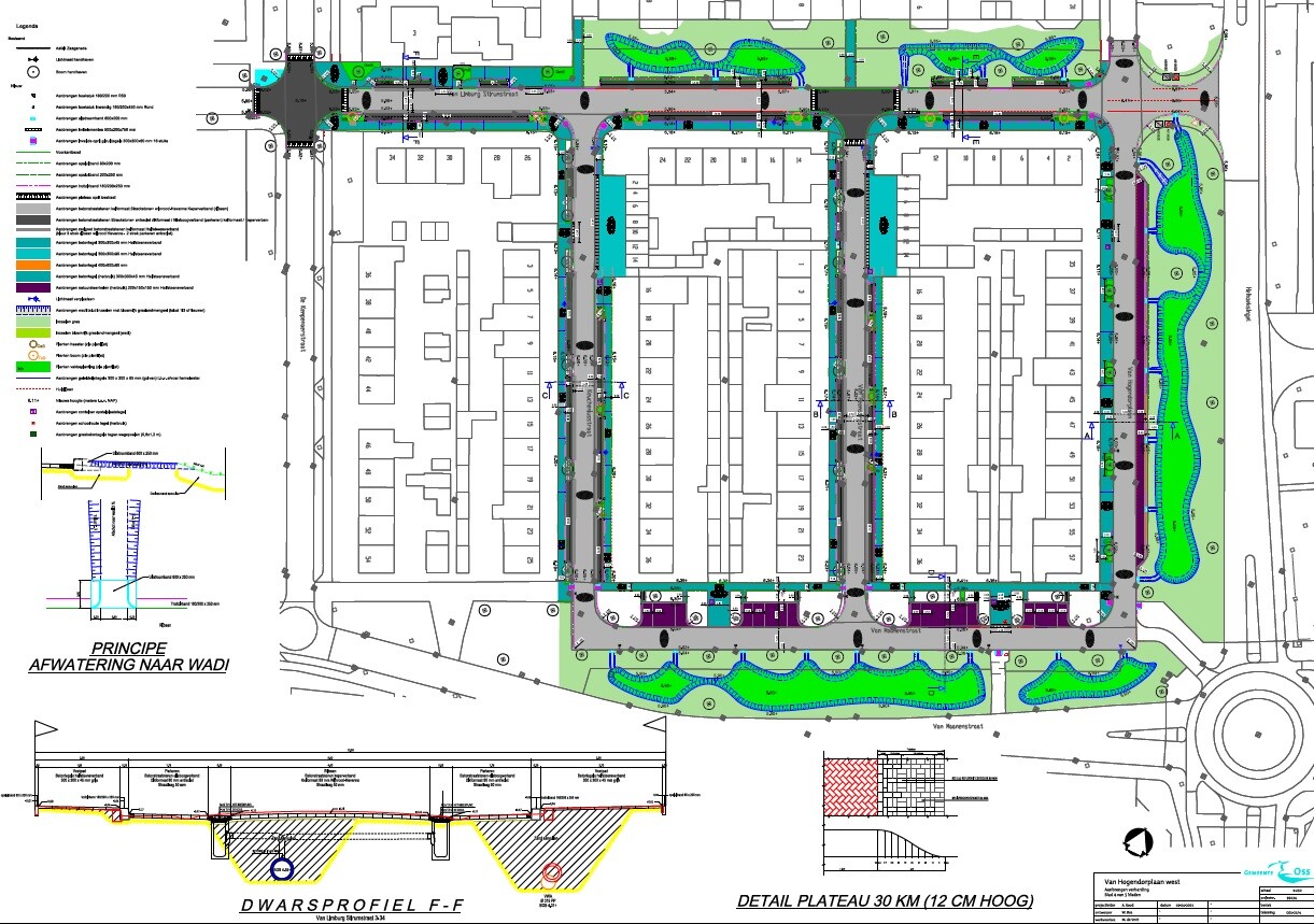
Het plan hebben wij eerder met u gedeeld. Reacties zijn daar waar mogelijk verwerkt. In de bijlage treft u het definitieve ontwerp aan.

Inmiddels is de aanbesteding van het werk gestart. Begin december 2021 zal de aannemer bekend zijn. De gemeente Oss, Brabant Wonen en de aannemer gaan daarna  in gezamenlijk overleg bepalen wanneer de schop de grond in zal gaan. Begin van het nieuwe jaar zal de planning bekend zijn en wordt u daarvan op de hoogte gesteld.

Wat gaan we doen ?

Riolering
Het riool voor afvalwater gaan we vervangen. Het regenwater gaan we afkoppelen. Het schone regenwater gaat dan niet meer naar de rioolzuivering, maar gaat daar waar mogelijk naar een wadi. Een wadi is een kleine verdieping in het bestaande maaiveld die ervoor zorgt dat het overtollige water goed weg kan zakken in de bodem. Alleen tijdens en na een hevige neerslag staat er water in de wadi. Uiteraard is de wadi na enkele maanden begroeid met gras.

Herinrichten
Het asfalt van de rijbaan in alle straten wordt vervangen door klinkers. De trottoirs krijgen nieuwe tegels. De huidige verlichting vervangen we door nieuwe. De bomen en het bestaande groen blijft zoveel als mogelijk behouden. In de Keucheniusstraat en van Heemstrastraat gaan we, naast het creëren van langsparkeren, ook enkele extra plantvakken toevoegen. 

Vragen en opmerkingen
Stuur, bij voorkeur per mail, uw reactie naar projectleider Armand Rood van de gemeente Oss via a.rood@oss.nl o.v.v. herinrichten Van Hogendorplaan.

Vragen over uw woning of afkoppeling van uw tuin? Neem dan contact op met Janet Govers van Brabant Wonen. Mevrouw Govers is te bereiken via telefoonnummer 088-281 6098 of per email : j.govers@brabantwonen.nl

Initiatiefnemer

Deelnemers

Er zijn nog geen deelnemers

Feedback van de gemeente

Reacties

Idee is ingestuurd op 29-10-2021